Rif: IMMO-125335713
PADOVA
PADOVA - zona Santa Rita
In una delle vie più richieste e piacevoli del quartiere Santa Rita, proponiamo in esclusiva un affascinante appartamento all'ultimo piano, disposto su due livelli, situato in un contesto condominiale signorile e dotato di ascensore.
Una soluzione unica, ricca di potenzialità, ideale per chi desidera ampi spazi, luminosità e la possibilità di plasmare gli interni secondo il proprio gusto.
Caratteristiche principali dell'immobile
Zona giorno accogliente e luminosa
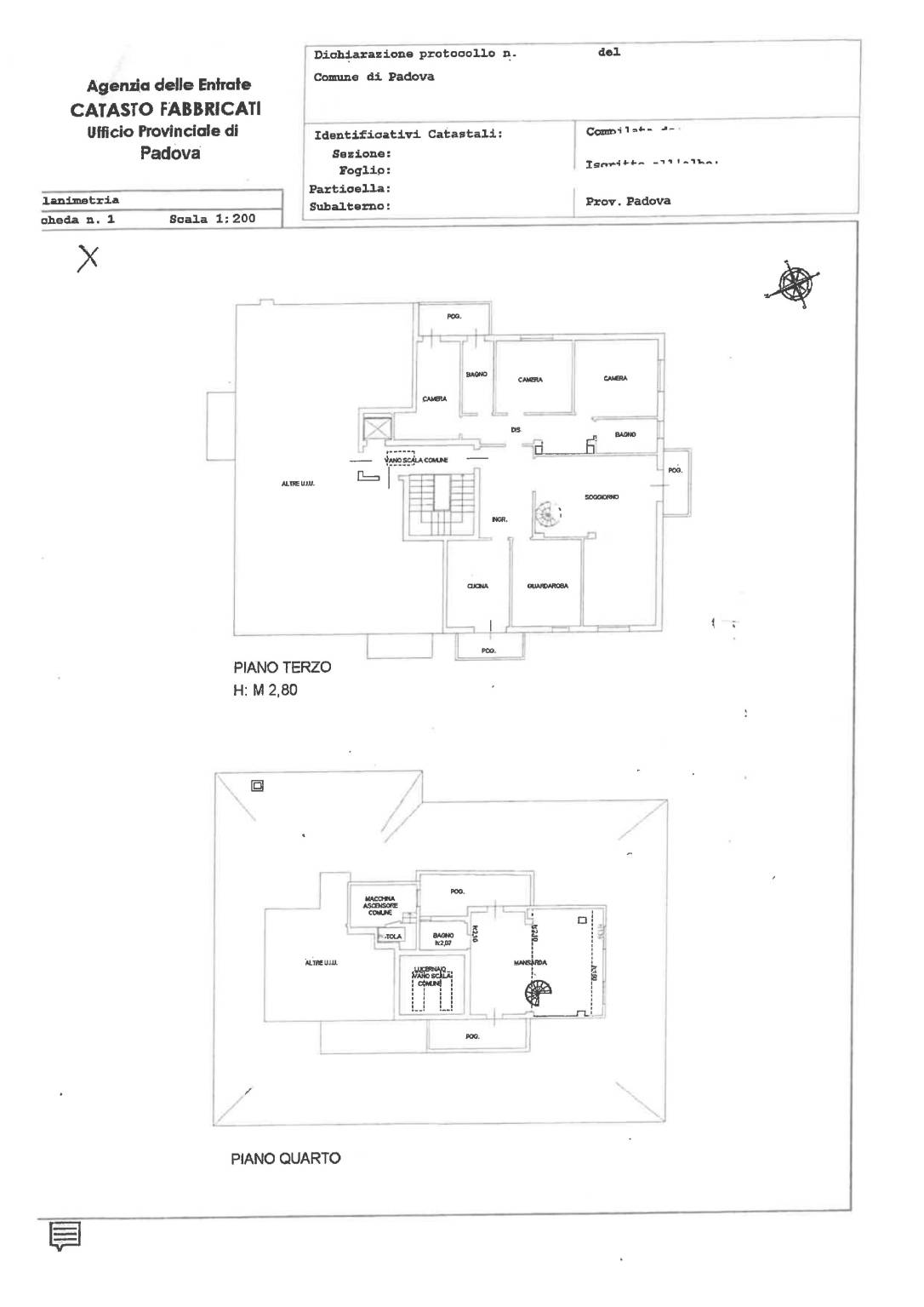
All'ingresso si viene accolti da un ampio salone, perfetto per creare una zona living elegante e conviviale, con grandi finestre che garantiscono ottima luminosità.
La cucina, spaziosa e funzionale, offre la possibilità di organizzare un ambiente pratico e moderno.
Zona notte ben distribuita
Il piano principale ospita tre camere da letto, tutte ben dimensionate, e due bagni finestrati, caratteristica sempre più rara e preziosa.
È inoltre presente uno studio, ideale come home office, stanza hobby o quarta cameretta.
La mansarda è collegata internamente attraverso una bella scala a chiocciola: un suggestivo open space con soffitti caratteristici, perfetto come sala relax, area giochi, camera ospiti o spazio creativo. La mansarda dispone anche di un WC finestrato, rendendo l'ambiente autonomo e funzionale.
Spazi esterni: Due terrazze vivibili al piano, ideali per chi ama pranzare all'aperto, prendere il sole o creare un angolo verde privato.
Pertinenza: al piano terra è presente un comodo garage di 15 m², perfetto per auto di medie dimensioni, moto o spazio magazzino.
Stato e impianti: Termocentralizzato.
Aria condizionata caldo/freddo presente nella sola zona giorno
L' immobile è completamente da ristrutturare, con grandi potenzialità di personalizzazione
Perché scegliere questo immobile?
✔ Ultimo piano, luminoso e silenzioso
✔ Ampia metratura e spazi versatili
✔ Mansarda già collegata e sfruttabile
✔ Due terrazze
✔ Garage incluso
✔ Ottimo contesto, in una delle vie più belle di Santa Rita
✔ Possibilità di creare una casa moderna e su misura
???? Contattaci per maggiori informazioni o per fissare una visita!
Questa è un'occasione rara per chi cerca spazio, tranquillità e un'abitazione prestigiosa da personalizzare secondo il proprio stile.
Una soluzione unica, ricca di potenzialità, ideale per chi desidera ampi spazi, luminosità e la possibilità di plasmare gli interni secondo il proprio gusto.
Caratteristiche principali dell'immobile
Zona giorno accogliente e luminosa
All'ingresso si viene accolti da un ampio salone, perfetto per creare una zona living elegante e conviviale, con grandi finestre che garantiscono ottima luminosità.
La cucina, spaziosa e funzionale, offre la possibilità di organizzare un ambiente pratico e moderno.
Zona notte ben distribuita
Il piano principale ospita tre camere da letto, tutte ben dimensionate, e due bagni finestrati, caratteristica sempre più rara e preziosa.
È inoltre presente uno studio, ideale come home office, stanza hobby o quarta cameretta.
La mansarda è collegata internamente attraverso una bella scala a chiocciola: un suggestivo open space con soffitti caratteristici, perfetto come sala relax, area giochi, camera ospiti o spazio creativo. La mansarda dispone anche di un WC finestrato, rendendo l'ambiente autonomo e funzionale.
Spazi esterni: Due terrazze vivibili al piano, ideali per chi ama pranzare all'aperto, prendere il sole o creare un angolo verde privato.
Pertinenza: al piano terra è presente un comodo garage di 15 m², perfetto per auto di medie dimensioni, moto o spazio magazzino.
Stato e impianti: Termocentralizzato.
Aria condizionata caldo/freddo presente nella sola zona giorno
L' immobile è completamente da ristrutturare, con grandi potenzialità di personalizzazione
Perché scegliere questo immobile?
✔ Ultimo piano, luminoso e silenzioso
✔ Ampia metratura e spazi versatili
✔ Mansarda già collegata e sfruttabile
✔ Due terrazze
✔ Garage incluso
✔ Ottimo contesto, in una delle vie più belle di Santa Rita
✔ Possibilità di creare una casa moderna e su misura
???? Contattaci per maggiori informazioni o per fissare una visita!
Questa è un'occasione rara per chi cerca spazio, tranquillità e un'abitazione prestigiosa da personalizzare secondo il proprio stile.
Consistenze
| Descrizione | Superficie | Sup. comm. |
|---|---|---|
| Principali | ||
| Immobile - 3° piano | 166 Mq | 166 Mqc |
| Terrazza - 3° piano | 12 Mq | 4 Mqc |
| Terrazza - 4° piano | 20 Mq | 6 Mqc |
| Box/Garage - piano terra | 15 Mq | 8 Mqc |
| Totale | 184 Mqc | |
